Stavební projekt domu k prodeji.
Od ledna 2015, kdy jsme se do našeho domu nastěhovali uteklo už spoustu let. Jedná se o soběstačný dům z přírodních materiálů stavěný svépomocí. Ukázalo se, že se tu bydlí opravdu dobře. Časem jsem jenom dodělal rekuperaci pro čistý vzduch, protože mikroventilace vám opravdu nevyvětrá.
Co můžu vyzdvihnout, tak je univerzálnost takto otevřeného prostoru. Během let se různě přespuvaly pokoje, pracovny, ložnice.

Nedávno mi došlo, že by mohl být zájem o projekt našeho domu. Návrh tohoto domu vznikam víc jak 8 měsíců, je v souladu s FengShui. Dům je z přírodních materiálů (dřevo, hlína, sláma, papír, cihly,..) s difusně otevřenou skladbou stěny.
Dům jsem stavěl víceméně jen s několika pomocníky (studenty), takže se dá krásně stavět svépomocně. Samozřejmě specializace (voda, tesařina, elektro,..) je otázka každého, kdo co umí.

Nabízím tedy stavební projekt domu k prodeji

Tady je fotodokumentace finálního interiéru a exteriéru. Miluji dřevo a svobodný otevřený prostor, podle toho výsledek vypadá 🙂
Dům je schopen ostrovního provozu, jak co se týče vody, tak elektřiny – tepla.

 

VODA: Na pozemku je vrt pro zásobování vodou, v domě je separační toaleta, takže do odpadu je pouze „šedá“ voda, která za separační nádrží vstupuje do kořenové čistírny. To je krásný vegetativní prvek na zahradě, který nikdy nevysychá. Na této čistírně se pěstují bahenní rostliny, které kvetou a jsou zelené celou sezonu.

 

ELEKTŘINA: O elektřinu se stará fotovoltaický systém s baterií. Po nastěhování měl výkon 3kWp, ale postupem let se stále zvětšoval, aktuálně 17kWp. Mimo ohřevu vody už se výrazně podílí na topení a od roku 2025 i dotování elektromobilu.

Takže nabízím k prodeji kompletní stavební dokumentaci tohoto domu.
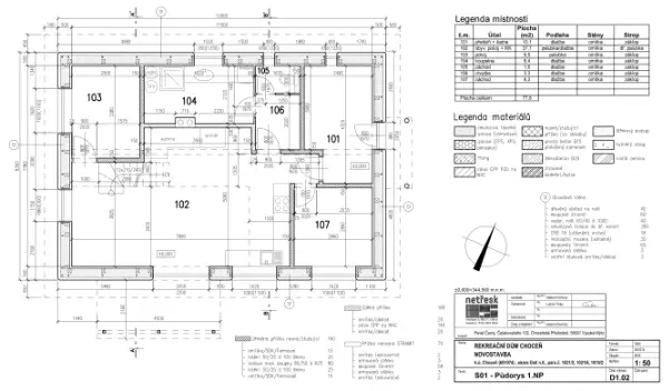
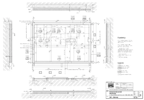
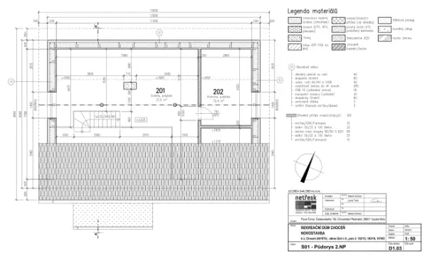
Dokumentace, řezy, půdorysy, veškerá technické zprávy

  • Celá dokumentace včetně kořenové čistírny odpadních vod za symbolických 9 990 Kč
    Pro stavbu můžu poskytnout konzultaci s realizací.

  • Dokumentace kořenové čistírny odpadních vod za 8 000 Kč
    U kořenovky můžu poskytnout konzultaci při realizaci, mě vyšla svépomocí na cca 40 tis. Kč

Při zájmu pište na mail pavel[zavináč]cernyp.cz